ArtiosCADのサポート体制

Home > 製品情報 > ArtiosCAD > デザインモジュール

ArtiosCADページトップバナー画像

 

デザインモジュールとは

誰でも作図できるように

ArtiosCADが備える描画ツールは、まさにペンとカッターを使用しているような直感的な操作感とインターフェースを実現しています。その操作性は初めてCADを使う人であってもその日から作図ができるようになることからも実証されています。

デザインモジュールでは基本数値の入力だけで自動で図面作成が行なわれる定型作図機能や編集機能、Adobe Illustrator等の異なるファイル形式の読込みなど、構造設計をより簡単に、スムーズに行えるモジュールがそろっています。

ArtiosCADの図面を設計している画面

 

 

 

デザインモジュール一覧

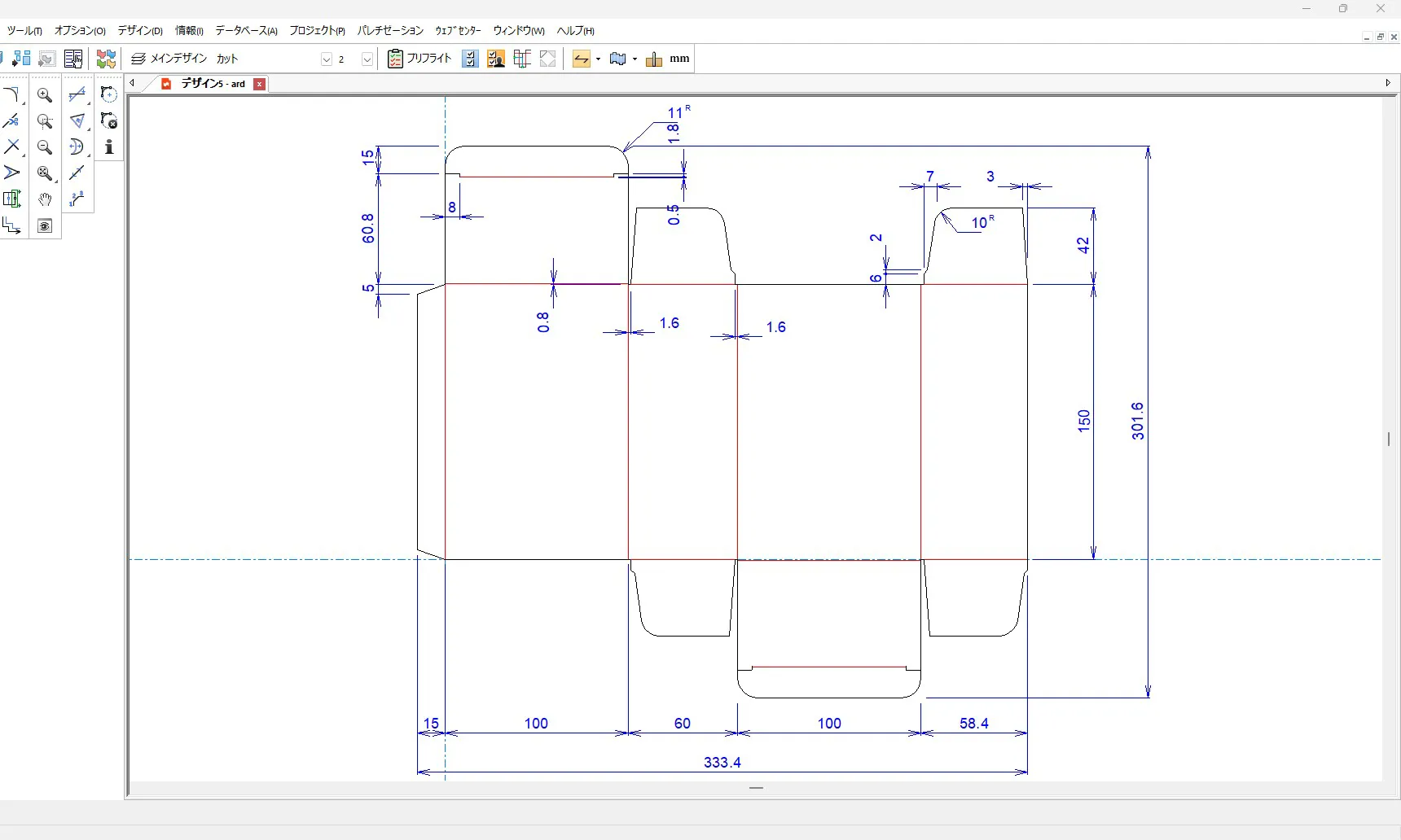
白紙からの作図か他ソフトからの読み込みでパッケージを作図している画面

デザイナー:作図

白紙からの作図や他ソフトからのデータの読み込みを行います。製図用紙に図面を描くイメージで製図・設計が可能です。

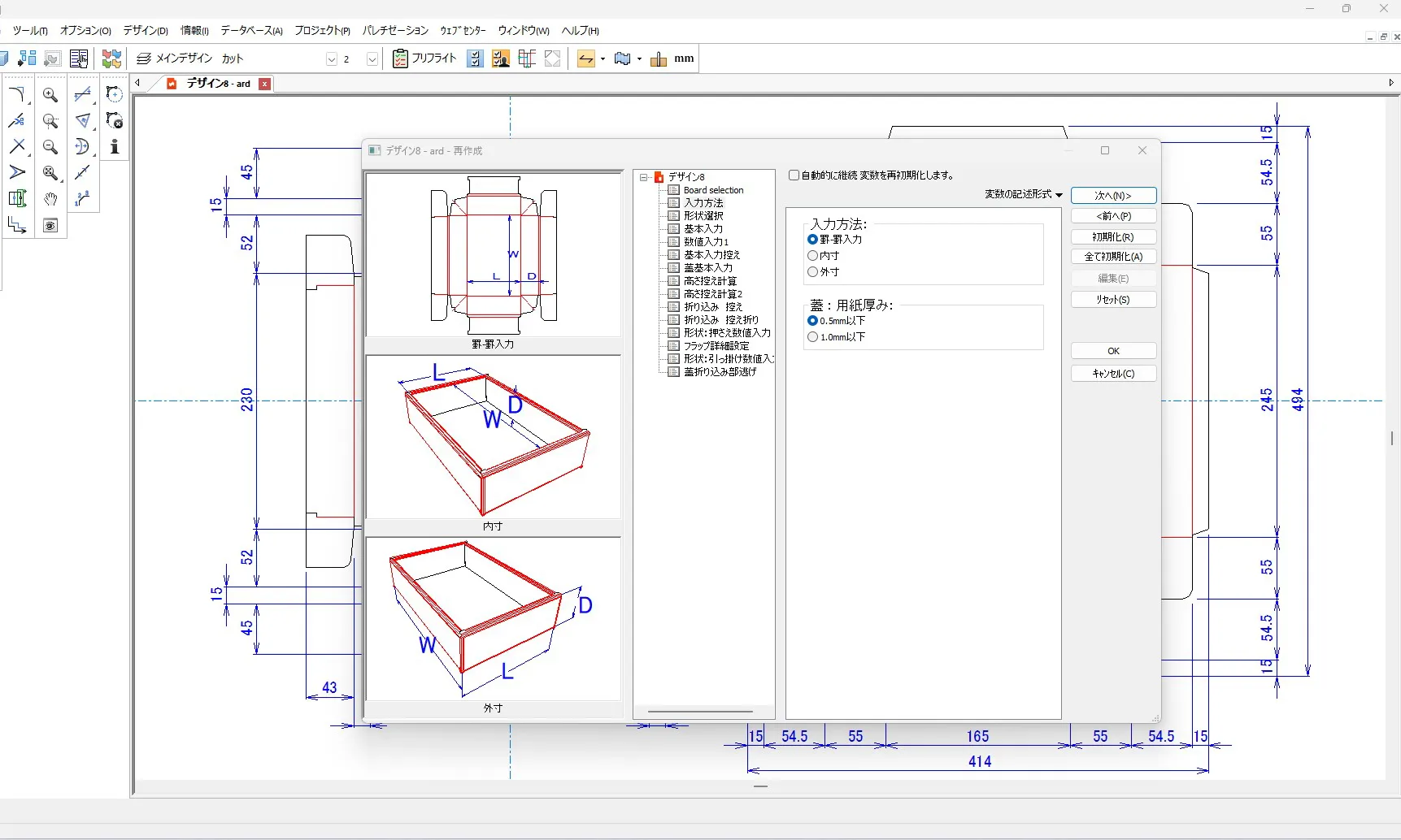
登録された約1,100種類の定型パターンを使用して作図している画面

ビルダー:定型作図

約1,100種類の定型パターンが登録されており、L/W/Dの数値入力により短時間で図面が完成します。

定型パターンを作成している画面

スタイルメーカー:簡易定型作成

数値入力での図面形状を変更できる定型・雛型の作成が可能です。図面作成する際に、数値ではなく変数を入力して作成することで定型データの作成ができます。

オリジナルの定型を作成している画面

アドバンスドスタイルメーカー:オリジナル定型作成

スタイルメーカーに比べ様々な制限をつけることができます。複雑な数式の利用が可能となっており、連動で複数個所のサイズ指定が必要な場面でも基準値となる変数の設定のみで済ますこともできます。
If文やfor文による制御も可能です。

グラフィックをインポートして図面に反映している様子

アートメーカー:グラフィックインポート

PDF、EPS、JPG、TIFF、Ai、PNGなどのグラフィック読込みに対応。ベクター形式でデータの読み込みも可能なため、元データの線を使いCAD上で抜き線の作成を簡単に行えます。

3DPDF形式で保存されたイスと机が表示された画面

PDFインポート/エクスポート

3D PDF形式のグラフィックのインポート/エクスポートが可能です。エクスポートではPDF形式の他に、拡縮・回転の可能な3D PDF形式で保存できます。

お客様名や担当者などの必要事項が記入されたレポート(仕様書)

レポートメーカー:仕様書作成

レポート(仕様書)テンプレートの多種デザインが可能です。 図面を印刷出力する際に、お客様名や担当者などの必要事項が希望の枠位置に配置され出力されます。